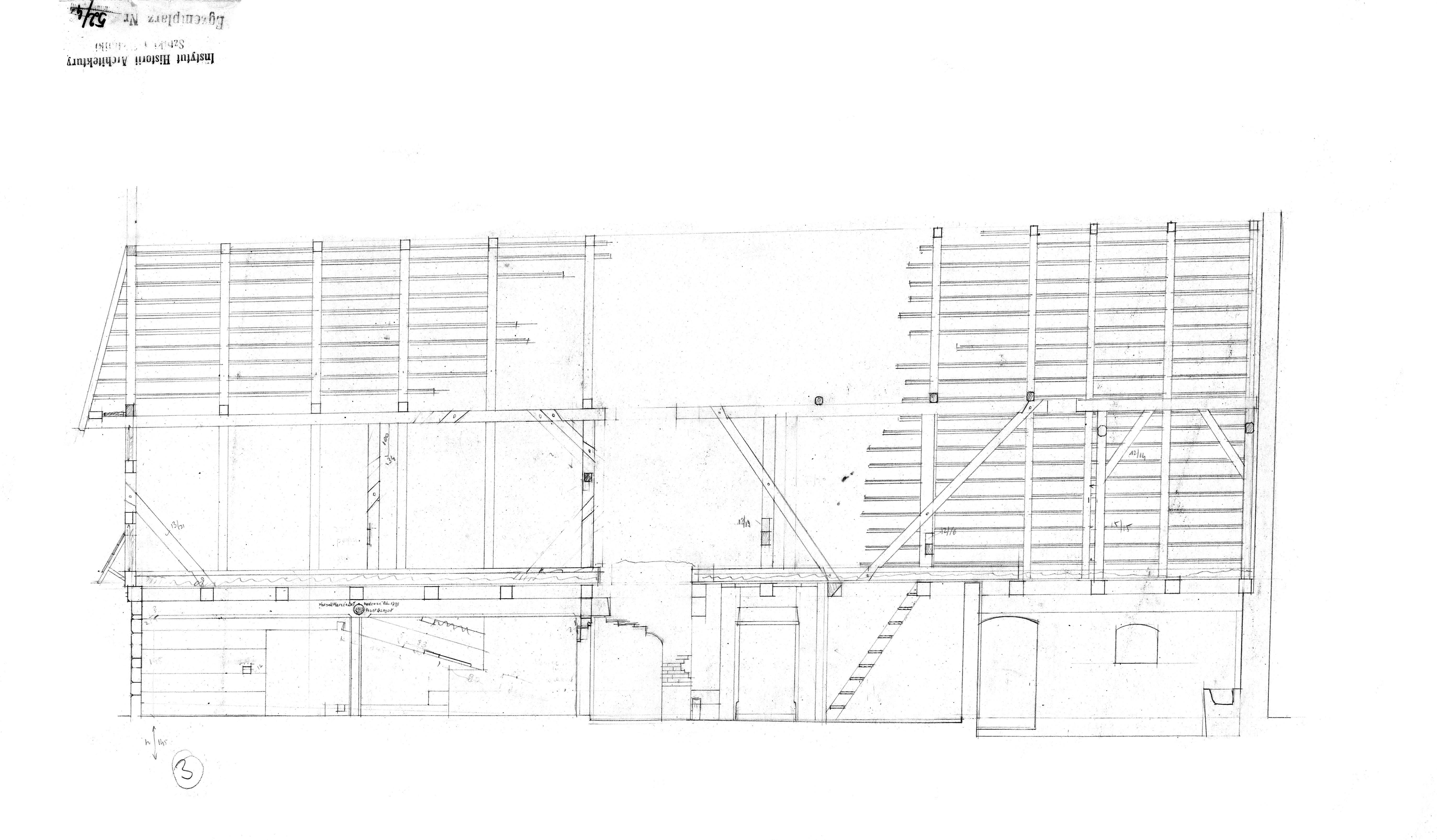
Chata nr 19 w Domaszowicach. Przekrój poprzeczny
Autor: Współtwórca:Instytut Historii Architektury Sztuki i Techniki Politechniki Wrocławskiej
Temat i słowa kluczowe:woj. opolskie ; pomiary inwentaryzacyjne ; zabytki ; architektura ; chaty ; Domaszowice
Data wydania: Typ zasobu: Źródło: Powiązania:Politechnika Wrocławska. Wydział Architektury ; Społeczna Odpowiedzialność Nauki (SON) - Pomiary inwentaryzacyjne ; SON1/Pomiary inwentaryzacyjne ; SON1/Pomiary inwentaryzacyjne/52 II
Prawa:Wszystkie prawa zastrzeżone (Copyright)
Prawa dostępu:Dla wszystkich w zakresie dozwolonego użytku
Lokalizacja oryginału: Źródło finansowania: