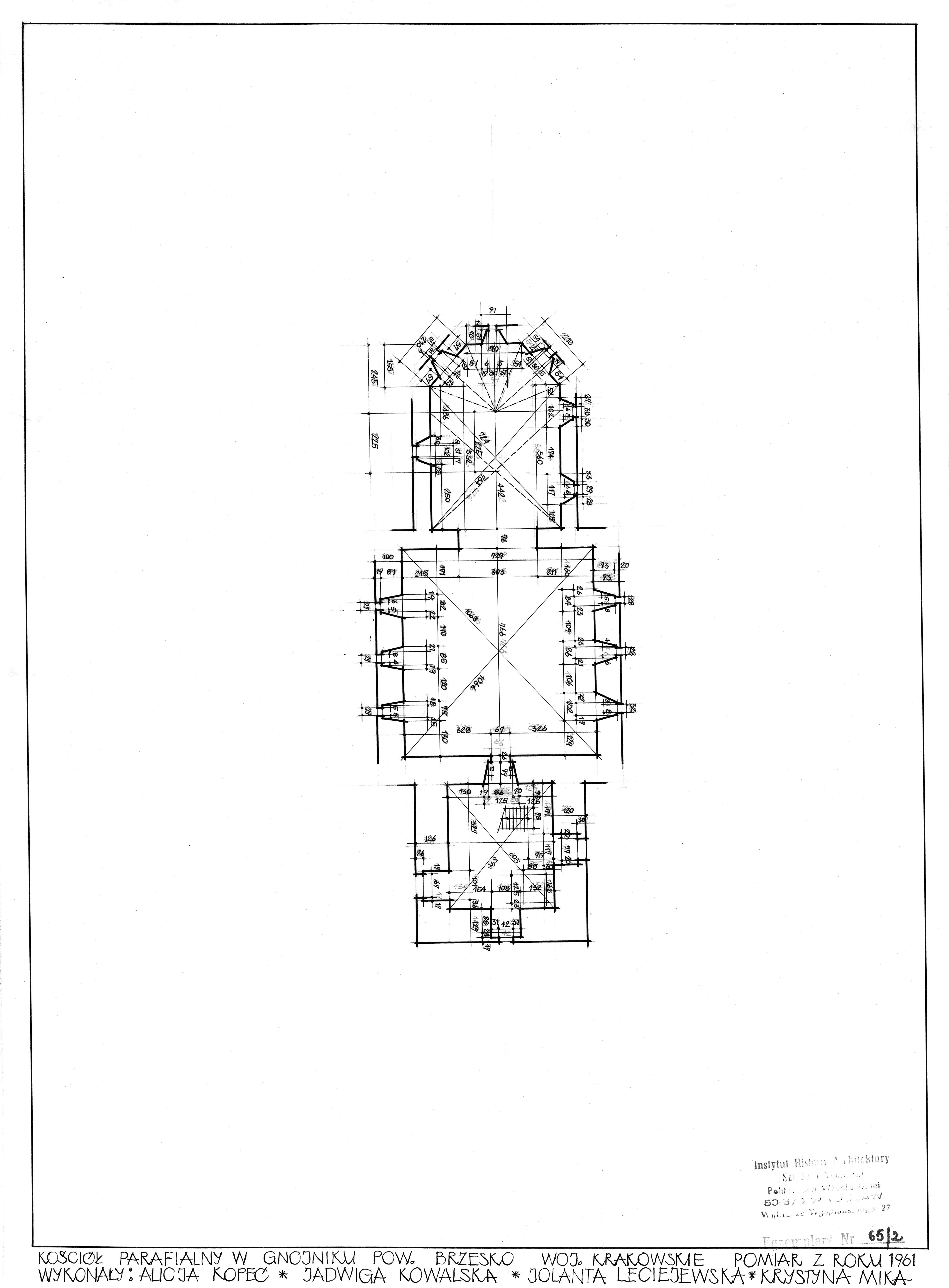
Kościół św. Marcina w Gnojniku. Rzut
Autor:Kopeć, Alicja ; Kowalska, Jadwiga ; leciejewska, Jolanta ; Mika, Krystyna
Współtwórca:Instytut Historii Architektury Sztuki i Techniki Politechniki Wrocławskiej
Temat i słowa kluczowe:Małopolska ; pomiary inwentaryzacyjne ; zabytki ; architektura ; kościoły ; Gnojnik
Data wydania: Typ zasobu: Źródło: Powiązania:Politechnika Wrocławska. Wydział Architektury ; Społeczna Odpowiedzialność Nauki (SON) - Pomiary inwentaryzacyjne ; SON1/Pomiary inwentaryzacyjne ; SON1/Pomiary inwentaryzacyjne/65 II
Prawa:Wszystkie prawa zastrzeżone (Copyright)
Prawa dostępu:Dla wszystkich w zakresie dozwolonego użytku
Lokalizacja oryginału: Źródło finansowania: