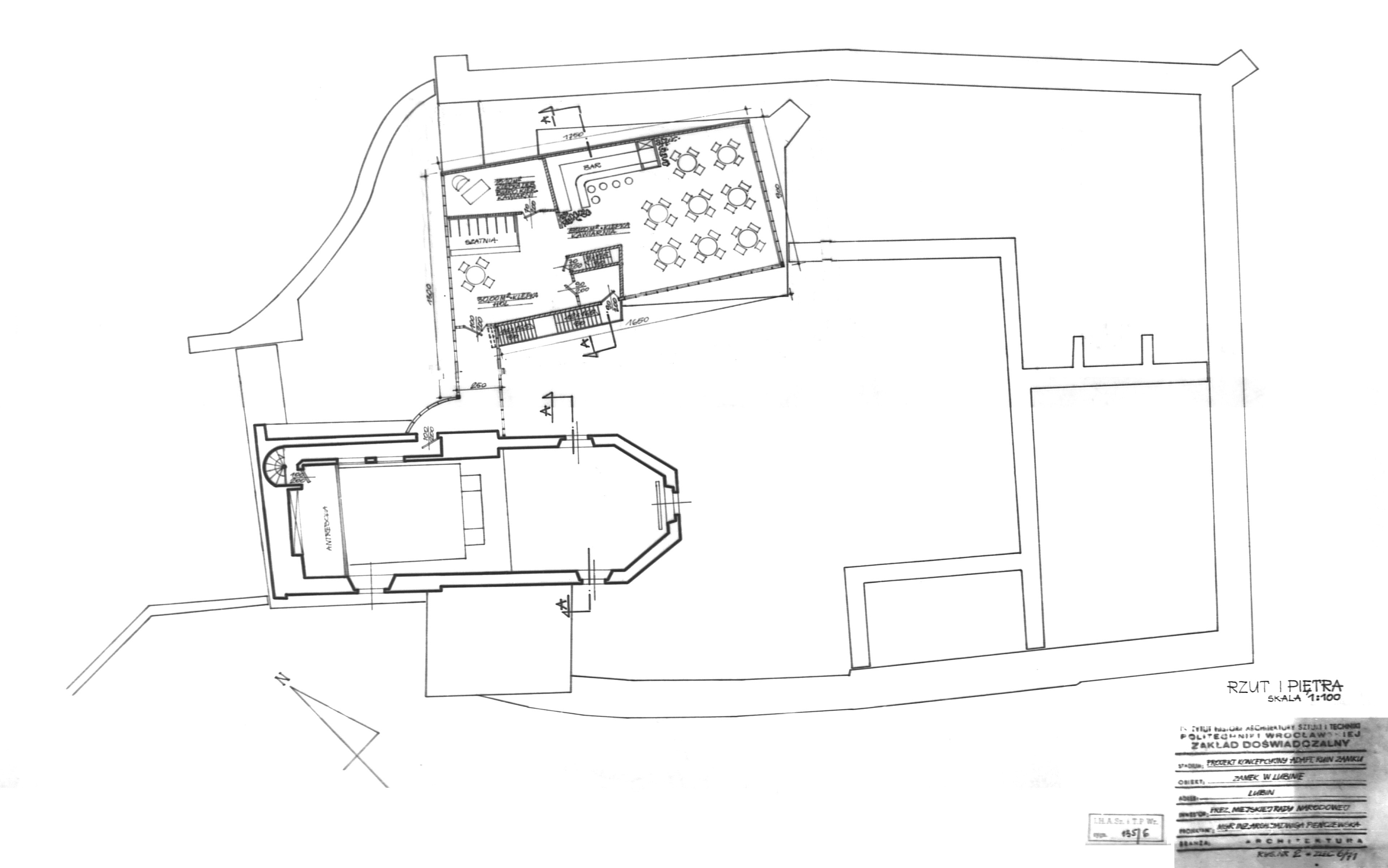
Zamek w Lubinie. Rzut I piętra. Projekt koncepcyjny adaptacji ruin
Autor: Współtwórca:Instytut Historii Architektury Sztuki i Techniki Politechniki Wrocławskiej
Temat i słowa kluczowe:Śląsk, Dolny ; Lubin ; zabytki ; architektura ; pomiary inwentaryzacyjne ; zamki
Opis:Nieistniejąca już budowla, zachowała się jedynie kaplica zamkowa
Data wydania: Typ zasobu:fotografia ; pomiar inwentaryzacyjny
Źródło: Język: Powiązania:DUN1/Negatywy - pomiary ; Działalność Upowszechaniająca Naukę (DUN) ; Politechnika Wrocławska. Wydział Architektury ; Historia Techniki. Dokumentacja fotograficzna Wydziału Architektury Politechniki Wrocławskiej ; SON1/Pomiary inwentaryzacyjne/250 II
Prawa:Wszystkie prawa zastrzeżone (Copyright)
Prawa dostępu:Dla wszystkich w zakresie dozwolonego użytku
Lokalizacja oryginału: Źródło finansowania:Digitalizację materiałów przeprowadzono w ramach umowy 516/P-DUN/2016 ze środków Ministra Nauki i Szkolnictwa Wyższego przeznaczonych na działalność upowszechniającą naukę ; Opracowanie materiałów przeprowadzono w ramach umowy 585/P-DUN/2018 ze środków Ministra Nauki i Szkolnictwa Wyższego przeznaczonych na działalność upowszechniającą naukę ; Udostępnienie materiałów przeprowadzono w ramach umowy SONB/SP/465782/2020 ze środków Ministra Nauki i Szkolnictwa Wyższego w ramach programu Społeczna Odpowiedzialność Nauki